- Woonoppervlakte
- Circa 67 m²
- Inhoud
- Circa 219 m³
- Bouwjaar
- Gebouwd in 1965
- Aantal kamers
- 3 kamers (2 slaapkamers)
Welcome to this fantastic, GAS-FREE apartment on Leyweg 120!
This spacious 3-room apartment on the sixth floor offers you the perfect combination of space, comfort, and a great location. Situated in the most vibrant part of Leyweg, this is truly a place where you'll feel right at home.
Are you curious about this property? Our SMASH real estate agent, Alexandra van der Schot, will start viewings on Tuesday, July 8 and Wednesday, July 9, 2025. You can choose a time slot yourself via the property website: leyweg120.nl
This amazing apartment is located on freehold land and provides all the conveniences you need. With shops and public transport just around the corner, you’ll never have to travel far for your daily needs or a quick connection to The Hague city center. And as the cherry on top, the beach, sea, and dunes are within cycling distance. This way, you can enjoy the best of both worlds: the vibrant city life and the calming coast.
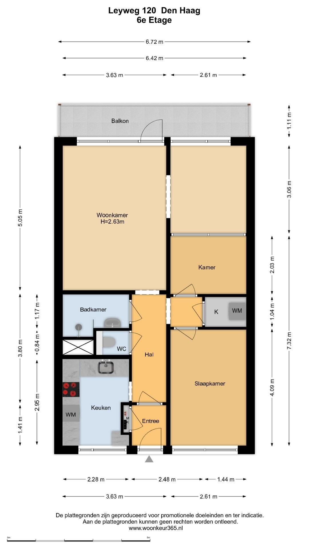
Layout
– Ground Floor –
Access via the main entrance with an intercom panel. In the stairwell, you’ll find two elevators and of course the stairs leading to all floors.
At the front (outside) of the complex, you’ll find the private storage unit.
– Sixth Floor –
Apartment Layout
Upon entering the apartment, you are welcomed into a spacious hallway with the meter cupboard. From here, you have access to the bright living and dining area, where you can fully enjoy the space and natural light. At the front of the apartment is a wide balcony that stretches across the entire width of the apartment and is ideally situated facing the sunny Southwest.
The apartment also features a modern kitchen equipped with all essential appliances, including a fridge/freezer combo, oven, induction cooktop, extractor fan, boiler (owned), and a designated space for the washing machine.
There are two comfortable bedrooms: one at the front and one in the center of the apartment. The dining room could also be converted into a third bedroom if needed.
The modern bathroom is fitted with a walk-in shower and a vanity unit.
Who is this apartment ideal for?
This apartment is ideal for ANYONE looking for an affordable, spacious, and comfortable home in a great location.
Whether you want to enjoy city life or unwind by the coast, this apartment is the perfect base to experience the best of both worlds.
Don’t wait—schedule a viewing now and see this fantastic apartment on Leyweg for yourself. Before you know it, you could be enjoying everything this home has to offer!
Balcony
At the front of the apartment is a wide balcony that spans the full width of the unit and faces the sunny Southwest.
Key Features
Freehold property (no leasehold)
Active, healthy Homeowners' Association (VvE) – Monthly contribution: €212.44 + heating advance: €129.31
Unobstructed views
Well-maintained kitchen with induction cooktop
Neat bathroom
Possibility to create a third bedroom
Nearby
Leyenburg shopping center
Tram and bus stops right outside
Haga Hospital within walking distance
20-minute bike ride to Kijkduin
30-minute bike ride to Scheveningen
15-minute bike ride to The Hague city center
Clause
Age clause:
Due to the age of the property, an age clause will be included in the purchase agreement.
We warmly invite you to view this property in person. For more information or to schedule a viewing, visit the property website: leyweg120.nl
This text, floor plans, and other information have been compiled with the utmost care. However, no liability is accepted for any inaccuracies, omissions, or consequences thereof.
Overdracht
- Vraagprijs
- € 250.000 k.k.
- Status
- Verkocht
- Bijdrage VvE
- € 212,44 per maand
Bouw
- Object type
- Galerijflat (appartement)
- Soort bouw
- Bestaande bouw
- Bouwjaar
- 1965
- Toegankelijkheid
- Toegankelijk voor ouderen
- Soort dak
- Plat dak bedekt met bitumineuze dakbedekking
- Keurmerken
- Energie Prestatie Advies
Oppervlakte en inhoud
- Woonoppervlakte
- 67 m²
- Inhoud
- 219 m³
- Externe bergruimte
- 4 m²
- Gebouwgeb. buitenruimte
- 8 m²
Indeling
- Aantal kamers
- 3 kamers (2 slaapkamers)
- Aantal badkamers
- 1 badkamer en 1 apart toilet
- Aantal woonlagen
- 1 woonlaag
- Gelegen op
- 6e woonlaag
- Voorzieningen
- Buitenzonwering en lift
Energie
- Energielabel
- C
- Isolatie
- Dubbel glas
- Verwarming
- Blokverwarming
- Warm water
- Elektrische boiler
Buitenruimte
- Ligging
- In woonwijk
- Balkon / dakterras
- Balkon aanwezig
Bergruimte
- Schuur / berging
- Inpandig
Parkeergelegenheid
- Soort parkeergelegenheid
- Betaald parkeren, op eigen terrein en openbaar parkeren
VvE checklist
- Inschrijving KvK
- Ja
- Jaarlijkse vergadering
- Ja
- Periodieke bijdrage
- Ja (€ 212,44 per maand)
- Reservefonds aanwezig
- Ja
- Onderhoudsplan
- Ja
- Opstalverzekering
- Ja
Energieverbruik in Den Haag
Energielabel deze woning
Energielabel C
Publicatie energielabel:
Stroomverbruik per jaar
(Gemiddelde appartement in Den Haag)
Gasverbruik per jaar
(Gemiddelde appartement in Den Haag)
* Cijfers zijn afkomstig van het CBS en bedoeld als indicatie en kunnen verschillen voor deze woning
Indicatie hypotheeklasten
Eigen inleg:
Spaargeld / overwaarde
Rente:
Laagste 10-jaars rente
Laagste 10-jaars rente
2,76% - Centraal Beheer Groen... - NHG
2,98% - Centraal Beheer Groen... - 80%
Laagste 20-jaars rente
3,19% - Centraal Beheer Groen... - NHG
3,31% - Centraal Beheer Groen... - 80%
Laagste 30-jaars rente
3,34% - Centraal Beheer Groen... - NHG
3,47% - Centraal Beheer Groen... - 80%
Hypotheek:
Bruto maandlasten: € 0 p/m
Netto maandlasten: € 0 p/m
Hoe berekenen we dit?
Het rentepercentage is gebaseerd op de laagste 10-jaars vaste rente voor één hypotheekdeel. De vermelde rente (2.76% met NHG) is gecontroleerd op 22-07-2025. Deze berekening is gebaseerd op een annuïteitenhypotheek die volledig wordt afgelost, waarbij de maandlasten gedurende de gehele looptijd gelijk blijven. De werkelijke rente en netto maandlasten kunnen variëren, afhankelijk van uw persoonlijke situatie en de hypotheekverstrekker. Raadpleeg een financieel adviseur voor een nauwkeurige berekening en advies. Aan deze berekening kunnen geen rechten worden ontleend; het dient enkel als indicatie.
Documentatie
Kadastrale kaart
Leefomgeving
Plattegronden PDF
WOZ waarderapport
BAG uittreksel
Brochure
0336-akte-wijziging-2024
0336-splitsingsakte-escamp
Balans-en-resultaatrekening
Jaarverslag
Begroting2024-07-12-2023-11-54-46
Energielabelc-07-12-2023-12-00-47
Loosduinenkadastralekaart-07-12-2023-11-53-15
Mjp
Lijst-van-zaken
Vragenlijst-deel-1
Escampballotageformuliera2017eigendom-08-12-2023-16-26-31
Escampballotageformulierb2017bewoning-08-12-2023-16-26-31
Informatiebladparkerenbijgebouwescamp-08-12-2023-16-26-31
2023-alv-07-12-2023-11-54-23
Leyweg-120-den-haag
2025-05-19-notulen-alv-naar-leden
2025-05-19-agenda-naar-leden
Akte-van-levering
Eigendomsinformatie-loosduinen-n-3518-a56
Makelaar Den Haag
Bezoek onze website
Bezichtiging
Bod uitbrengen
Waardebepaling
Zoekopdracht
Alles downloaden
Zonnegrenzen bekijken
Op de kaart
Inwoners in Den Haag
Cijfers voor postcodegebied 2545
- Totaal aantal inwoners
- 12040 inwoners
- Mannen
- 50%
- Vrouwen
- 50%
Inwoners in Den Haag
Cijfers voor postcodegebied 2545
- tot 15 jaar
- 19%
- 15 tot 25 jaar
- 11%
- 25 tot 35 jaar
- 31%
- 45 tot 65 jaar
- 25%
- 65 en ouder
- 15%
Huishoudens in Den Haag
Cijfers voor postcodegebied 2545
- Eenpersoons zonder kinderen
- 48%
- Meerpersoons zonder kinderen
- 19%
- Huishoudens zonder kinderen
- 67%
Huishoudens in Den Haag
Cijfers voor postcodegebied 2545
- Huishoudens met één kind
- 10%
- Huishoudens met meerdere kinderen
- 23%
- Huishoudens met kinderen
- 33%
Woningen in Den Haag
Cijfers voor postcodegebied 2545
- Woningen voor 1945
- 2%
- Woningen tussen 1945 en 1965
- 39%
- Woningen tussen 1965 en 1975
- 5%
- Woningen tussen 1975 en 1985
- 1%
- Woningen tussen 1985 en 1995
- 13%
Woningen in Den Haag
Cijfers voor postcodegebied 2545
- Woningen tussen 1995 en 2005
- 14%
- Woningen tussen 2005 en 2015
- 23%
- Woningen na 2015
- 4%
- Huurwoningen
- 60%
- Koopwoningen
- 40%
Overige in Den Haag
Cijfers voor postcodegebied 2545
- Gemiddelde WOZ waarde
- € 188.000,-
- Personen onder de 65 met uitkering
- 13%
Overige in Den Haag
Cijfers voor postcodegebied 2545
- Adressen per km²
- 4566
- Stedelijkheid (schaal 1 op 5)
- 100%



Indien u vragen heeft of u wilt een bezichtiging inplannen, dan kunt u gebruik maken van het formulier hiernaast. Er zal daarna op korte termijn contact met u worden opgenomen.
Rietvoornvijver 12
2492 MP, Den Haag
070 - 4445 551 info@smashmakelaars.nl www.smashmakelaars.nlTulpentuin 26
2272 XK, Voorburg
Rietvoornvijver 12
2492 MP, Den Haag
Contact opnemen
Over SMASH Makelaars
SMASH Makelaars is een jong en dynamisch makelaarskantoor met uitgebreide ervaring in aankoop en verkoop. Opgericht in 2020, streven wij ernaar om ons te onderscheiden van traditionele makelaarskantoren. Na ervaring opgedaan te hebben bij een ander kantoor in de regio, hebben we besloten onze krachten te bundelen en ons te onderscheiden door onze unieke werkwijze. Onze kernwaarden zijn betrouwbaarheid, betrokkenheid en toewijding. We bieden één vast contactpersoon en zijn altijd bereikbaar, terwijl we deskundig, betrouwbaar en gedegen advies geven dat aansluit bij uw persoonlijke wensen.
SMASH Makelaars: persoonlijke relaties en samenwerking
Het kopen of verkopen van een huis gaat verder dan alleen zakelijke aspecten. Het draait om emoties en het gevoel van 'thuiskomen'. Bij SMASH Makelaars helpen we u graag met meedenken, meekijken, vooruitdenken en vooral samen het beste resultaat bereiken!
Bij SMASH Makelaars bent u geen nummer, maar bouwt u een persoonlijke relatie op. Geen assistenten of junior makelaars: wanneer u kiest voor SMASH Makelaars, is uw huis gegarandeerd in handen van Sander of Alexandra zelf! Elke woning is voor ons een nieuwe uitdaging, of het nu gaat om verkoop, aankoop of waardebepaling. Dit leidt niet alleen tot de leukste woningen, maar ook tot de leukste opdrachtgevers.
Wilt u een woning verkopen in de omgeving van Leidschendam-Voorburg of Den Haag? Neem direct contact met ons op!

Nieuwste reviews
-
Anna Nieuwenhuizen
Sander heeft ons geweldig geholpen ons nieuwe huis te vinden en te kopen. Hij had veel kennis en was erg betrokken tijdens het gehele proces...
-
Geralda Brunsman
Sander is een makelaar die meedenkt met de verkopende partij. Hij geeft eerlijk advies over de woning, de vraagprijs zodat je weet waar je a...
-
Klaas-Jan Masker
Sander van Meerten is een prima makelaar die er echt is voor klanten. Zowel netwerk, communicatie als begeleiding is meer dan in orde. Dank...